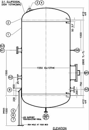
Pressure Vessels
PIn some of the chemical reactors, there will be tremendous build up of pressure associated with increase in temperature. Sieco specializes in such pressure vessels of high volume. Sieco has designed and supplied Pressure Vessel for a working pressure of greater than 100 kg/cm2
Pressure Vessels are used in Process Industries like including Chemical, Pharmaceuticals, Paint & Coatings, Resin Plants, Biotech industries etc. Our design department will study customer's special process requirements, and then design them. We then manufacture and supply the vessels.
Sailent Features:
- Designed and Fabricated as per IS:2825, ASME Sec VIII Div 1 & 2, PD 5500 Codes & Standard
- Material of Construction: SS304, SS304L, SS316, SS316L, Duplex Steel or Carbon Steel
- Normal Capacity from 5 Litres – 20 KL or suiting to client's requirement
- Operating range, Pressure – full vacuum to 120 Kg/cm2
- Heating / cooling – jacketed and limpet coil
Chemical Reactors